Obejrzyj galerię
Obejrzyj rzuty
zdjęcia
mapa
rzut
Przytulne mieszkanie 41m2 „pod klucz”- ogród 29m2!
05-510 Konstancin-Jeziorna, województwo mazowieckie Polska
cena 515 800 zł
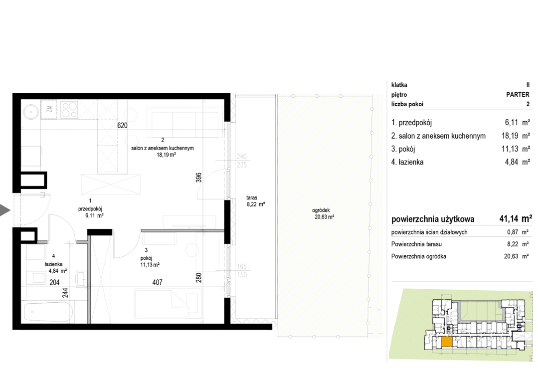
powierzchnia 41.14 m2
liczba pokoi 2
piętro 0
liczba pieter 3
opis

Pałac w Wilanowie, kompleksy sportowe, mikroklimat i bliskość lasów sosnowych, lasu Kabackiego – to zasadnicze zalety inwestycji w Konstancinie !

Otolokal prezentuje 2 pokojowe mieszkanie 41m2 z 8m2 tarasem i dużym 20m2 ogrodem znajdujące się na parterze w kameralnej inwestycji w samym sercu Konstancin-Jeziorna.

Lokal został zaprojektowany przez profesjonalną projektantkę wnętrz oraz zostanie wykończony „pod klucz” z wysokich klas materiałów, łączy najwyższy standard wykończenia z przemyślaną funkcjonalnością.

Mieszkanie o powierzchni  41,14 m2 w którego skład wchodzi: przestronny 18,19 m2 pokój dzienny z aneksem kuchennym, łazienka 4,84m2 oraz oddzielna sypialnia 11,13m2 doświetlona oknem z tarasu.

Ogromny atut mieszkania to duży 29m2 ogród z tarasem z wyjściem z salonu.

Oferta przedstawia mieszkanie w projekcie wykończenia „pod klucz” wraz z zabudową kuchenną, łazienkami – Ty wnosisz tylko walizki J. I to wszystko zrobimy w jedyne 75dni !.

Wszystkie komponenty wnętrza zostaną starannie wyselekcjonowane, tak by poza walorem ponadczasowej elegancji, charakteryzowały się wysoką trwałością.

Pomagamy w uzyskaniu kredytu na zakup nieruchomości oraz w załatwieniu wszystkich formalności.

Termin odbioru: III kwartał 2022

Dodatkowo płatne miejsce garażowe w cenie 33.000zł. Komórka lokatorska w cenie!

Bez podatku PCC!! Bez prowizji !!
Prosto od dewelopera!!!

Zapraszam do kontaktu 515-066-639. W ofercie również inne metraże w tej ciekawej inwestycji!

CHCESZ KUPIĆ NIERUCHOMOŚĆ?

+48 512 11 22 33